คอนโด 2 ห้องนอน 3 ห้องน้ำ พร้อมพื้นที่เปิดโล่ง ใจกลางสีลม บางรัก
สีลม, บางรัก, กรุงเทพมหานคร
คอนโด
การใช้ชีวิตที่สะดวกสบายและเปิดโล่งใจกลางกรุงเทพฯ
คอนโดขนาด 133 ตร.ม. นี้เป็นตัวเลือกที่ดีหากคุณต้องการที่อยู่อาศัยที่รู้สึกกว้างขวางและมีการจัดวางอย่างตั้งใจ ห้องนั่งเล่นและครัวแบบเปิดโล่งไหลลื่นต่อเนื่องกัน ดังนั้นคุณอาจจะใช้เวลาส่วนใหญ่ที่นี่ โซฟาสีเบจขนาดใหญ่พร้อมหมอนมากมายเหมาะสำหรับการผ่อนคลาย ผ้าม่านโปร่งตั้งแต่พื้นจรดเพดานช่วยให้แสงธรรมชาติเข้ามาอย่างนุ่มนวลโดยไม่ลดทอนความเป็นส่วนตัว
ครัวและพื้นที่รับประทานอาหาร—เรียบง่ายแต่มีสไตล์
เกาะครัวที่มีท็อปหินอ่อนเป็นจุดศูนย์กลาง พร้อมด้วยเก้าอี้บาร์สีเขียวสองตัวที่มีขาทองเพิ่มสีสันที่ลงตัว โคมไฟแขวนทันสมัยให้บรรยากาศอบอุ่น ทุกอย่างที่นี่เป็นแบบฝังและดูเรียบหรู
ห้องนอนและห้องน้ำออกแบบเพื่อความสบาย
ห้องนอนทั้งสองมีโทนสีเรียบสงบ เตียงนุ่ม และงานศิลปะที่เรียบง่ายซึ่งช่วยทำให้ห้องรู้สึกผ่อนคลาย ห้องน้ำหลักเหมือนสปาเต็มรูปแบบ—ผนังและพื้นทั้งหมดทำจากหินอ่อน อ่างอาบน้ำแบบอิสระ พร้อมฝักบัวแก้วแยกส่วนที่มีฝนชั้นอาบน้ำ การมีห้องน้ำสามห้องสำหรับห้องนอนสองห้องช่วยเพิ่มความสะดวกสบายโดยเฉพาะถ้าคุณมีแขก
โดยรวมแล้ว พื้นไม้ปาร์เกต์ ต้นไม้ในร่ม และไฟซ่อนในเพดานทำให้คอนโดนี้รู้สึกเหมือนบ้านที่สมบูรณ์และอบอุ่นในทำเลชั้นเยี่ยมของบางรัก นอกจากนี้ยังเป็นกรรมสิทธิ์แบบฟรีโฮลด์ พร้อมสำหรับคุณเมื่อไหร่ก็ได้
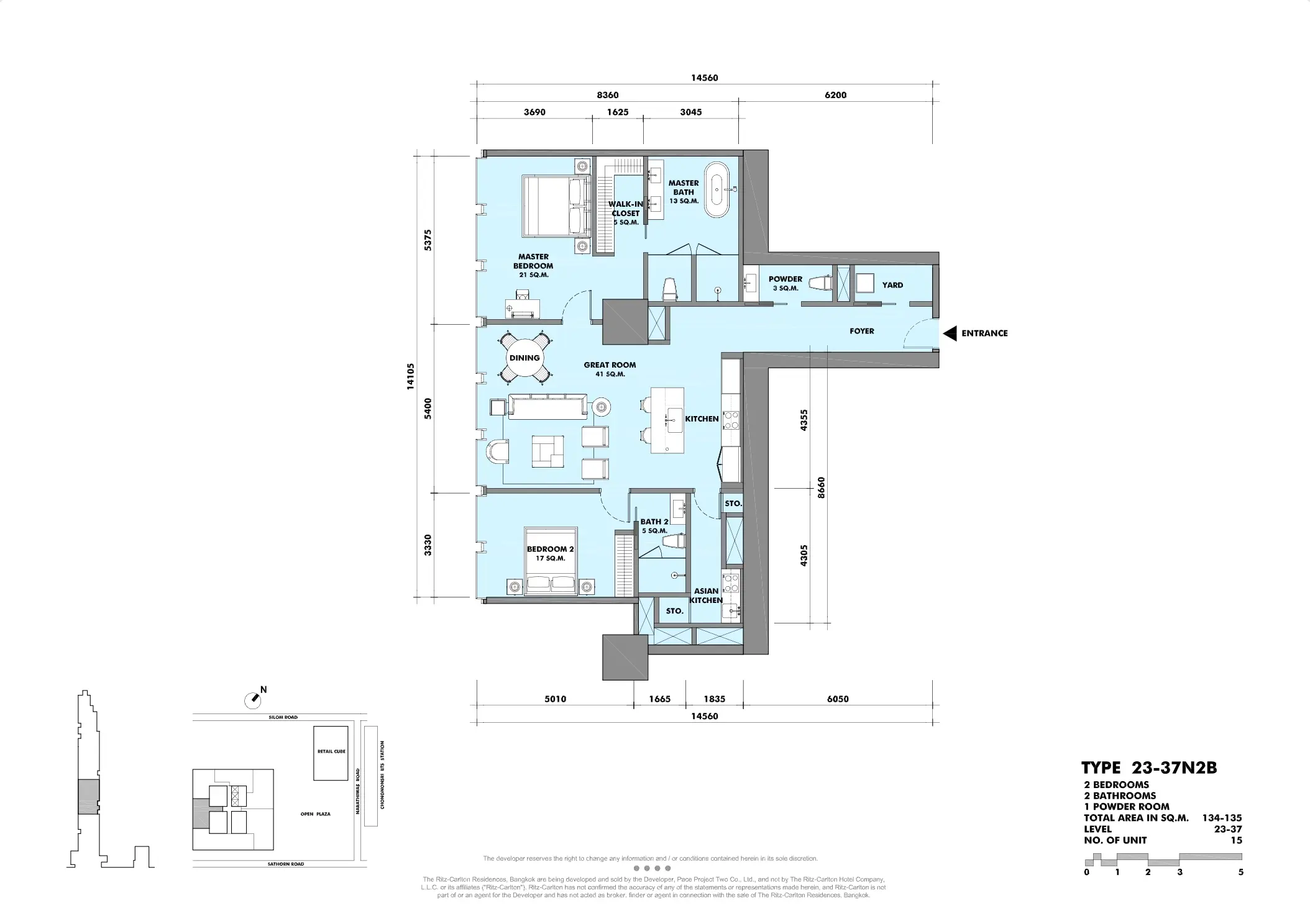
แบบแปลน

ตำแหน่งที่ตั้ง
รายการที่คล้ายกัน
สี่พระยา, บางรัก, กรุงเทพมหานคร
3 เดือนที่แล้ว
สีลม, บางรัก, กรุงเทพมหานคร
3 เดือนที่แล้ว
สีลม, บางรัก, กรุงเทพมหานคร
3 เดือนที่แล้ว
สีลม, บางรัก, กรุงเทพมหานคร
4 เดือนที่แล้ว































