คอนโด 2 ห้องนอนกว้างขวางในสีลม พร้อมวิวเมืองที่งดงามและดีไซน์ทันสมัย
สีลม, บางรัก, กรุงเทพมหานคร
คอนโด
พื้นที่นั่งเล่นสว่างและเปิดโล่งพร้อมการจัดวางที่ดี
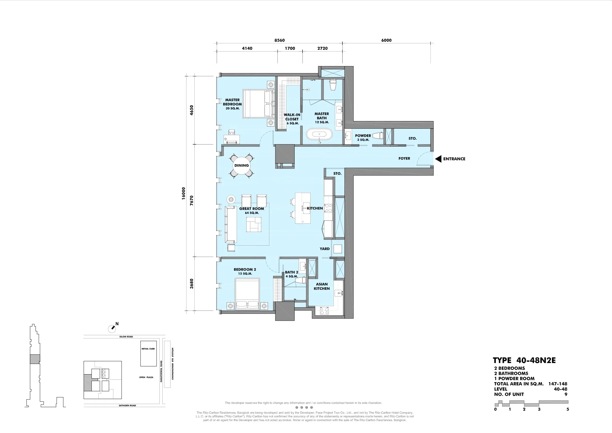
คอนโด 2 ห้องนอน 3 ห้องน้ำนี้ให้ความรู้สึกกว้างขวางอย่างแท้จริงด้วยพื้นที่ประมาณ 147.5 ตารางเมตร และห้องครัวแบบเปิดไหลลื่นไปยังพื้นที่นั่งเล่น ซึ่งเป็นที่ที่คุณน่าจะใช้เวลาส่วนใหญ่ ห้องครัวเองโดดเด่นด้วยไอส์แลนด์หินอ่อนที่มีขอบน้ำตกและอ่างล้างจานในตัว พร้อมตู้ built-in เงางามและเตาอบในตัว เป็นพื้นที่ที่เรียบร้อยและไม่รก ที่มีทุกอย่างอยู่ในมือแต่ยังเหลือที่ให้เคลื่อนไหวได้สะดวก
ภายในที่ทันสมัยและมีรสนิยม
การตกแต่งภายในคงความทันสมัยและมินิมอลด้วยโทนสีขาวและเทา พื้นไม้ปาร์เก้ และไฟติดฝ้าเพดานช่วยเพิ่มความอบอุ่นอย่างอ่อนโยน แผ่นกันเปื้อนหินอ่อนเชื่อมโยงกับไอส์แลนด์ครัว สร้างลุคที่สอดคล้องกันอย่างลงตัว นอกจากนี้ยังมีแผงควบคุมติดผนัง ทำให้คุณจัดการบรรยากาศของคอนโดได้อย่างง่ายดาย
ห้องน้ำและวิว
มีห้องน้ำสามห้อง รวมถึงห้องน้ำหลักที่มีอ่างอาบน้ำสีขาวแบบตั้งพื้นวางบนแท่นไม้และห้องอาบน้ำที่ล้อมรอบด้วยกระจกและหินอ่อน อุปกรณ์ต่าง ๆ มีผิวโครเมียมที่สะอาดและทันสมัย และแถบกระเบื้องโมเสคช่วยเพิ่มรายละเอียดเล็ก ๆ น้อย ๆ โดยไม่มากเกินไป
หน้าต่างจากพื้นจรดเพดานทำให้แสงธรรมชาติส่องเข้ามาเต็มพื้นที่และมอบวิวพาโนรามาของเส้นขอบฟ้ากรุงเทพฯ ซึ่งถือเป็นไฮไลท์โดยเฉพาะถ้าคุณชื่นชอบบรรยากาศเมืองที่มีชีวิตชีวาจากที่บ้าน โดยรวมแล้วเป็นพื้นที่ที่เหมาะทั้งสำหรับฟรีแลนซ์หรือครอบครัว หากคุณกำลังมองหาความสมดุลระหว่างความหรูหรากับการใช้ชีวิตประจำวันในบางรัก ใกล้สีลมที่คึกคักแต่มีความสงบและรู้สึกสูงส่ง
แบบแปลน

ตำแหน่งที่ตั้ง
รายการที่คล้ายกัน
สีลม, บางรัก, กรุงเทพมหานคร
1 เดือนที่แล้ว
สี่พระยา, บางรัก, กรุงเทพมหานคร
5 เดือนที่แล้ว
สีลม, บางรัก, กรุงเทพมหานคร
5 เดือนที่แล้ว
สีลม, บางรัก, กรุงเทพมหานคร
5 เดือนที่แล้ว































